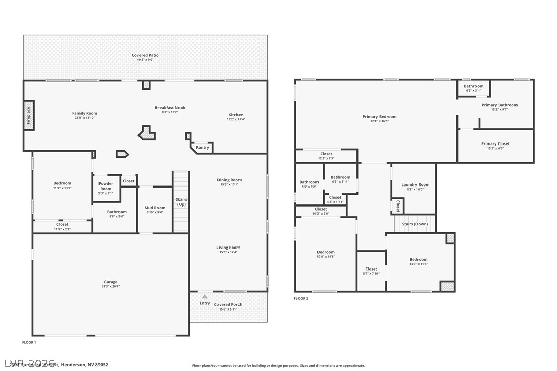
2398 Sunburst View StreetHenderson, NV 89052




Mortgage Calculator
Monthly Payment (Est.)
$3,992Discover a blend of comfort, efficiency, & elevated design in this exceptional Henderson home in the sought-after 89052 zip w/in a gated community. This updated 4-bedrm residence offers value w/paid-off solar, HVAC (2024), newer water heater, & a whole-home Life Source water system. Pebble stone finishes enhance curb appeal throughout, w/a private pool, spa, & pet run. Inside, a two-story great room features wood-like tile downstairs & engineered wood & travertine upstairs. The gourmet kitchen includes granite countertops, oversized island, 42" cabinetry, double wall ovens, & stainless appliances, opening to a family room w/a stone fireplace. A downstairs secondary suite w/ensuite bath adds flexibility. Upstairs, the primary retreat offers dual sinks, separate tub & shower, & walk-in closet w/built-ins. The backyard features covered patio w/speakers & ceiling fans overlooking the pool. Conveniently located near shopping, dining, parks, freeway access, airports, & the Las Vegas Strip.
| 17 hours ago | Listing first seen on site | |
| yesterday | Listing updated with changes from the MLS® |
Listing information is provided by Participants of the Greater Las Vegas Association of Realtors. IDX information is provided exclusively for personal, non-commercial use, and may not be used for any purpose other than to identify prospective properties consumers may be interested in purchasing. Information is deemed reliable but not guaranteed. Copyright 2026, Greater Las Vegas Association of Realtors.
Last checked: 2026-03-21 02:20 PM UTC
Did you know? You can invite friends and family to your search. They can join your search, rate and discuss listings with you.